¡Villa de lujo de nueva construcción con vistas al mar en Sa Torre!

Chalet Independiente en venta en Llucmajor, Baleares (Sa Torre)

Llucmajor (Sa Torre)

Ref. 1387 280 m2 40 m2 4 3 2
venta: 2.300.000 

TaylorBuilding presenta una extraordinaria villa de nueva construcción ubicada en la prestigiosa y apacible urbanización de Sa Torre, donde la tranquilidad, la privacidad y el diseño contemporáneo se unen para dar forma a un hogar verdaderamente excepcional. Esta propiedad, cuya finalización está prevista para el verano de 2026, ha sido concebida para satisfacer las más altas expectativas en términos de calidad, confort y eficiencia energética.

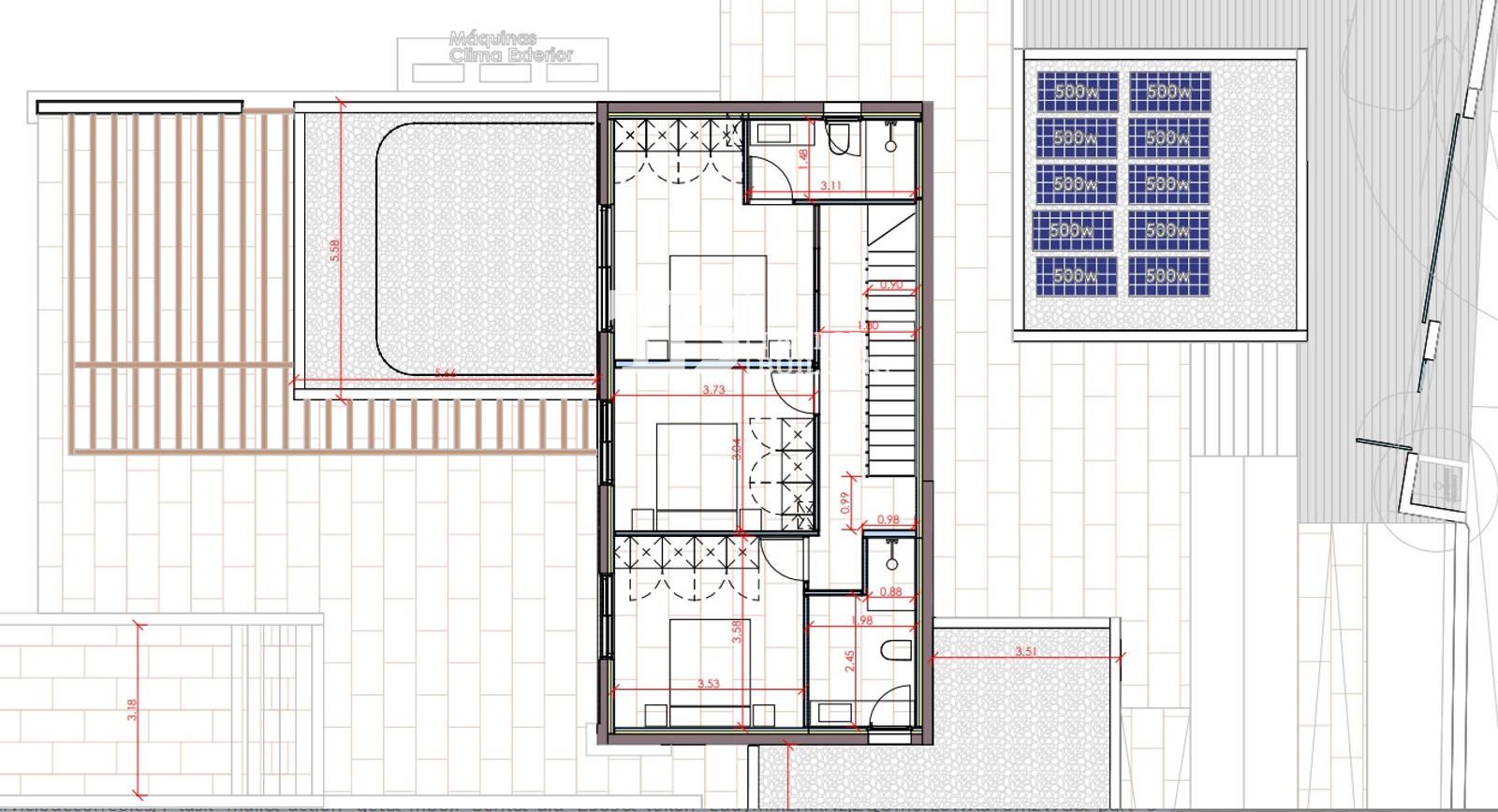
La vivienda se desarrolla sobre una cuidada parcela y ofrece cuatro amplios dormitorios y tres baños, con una distribución elegante y funcional que se adapta tanto a la vida familiar como al disfrute vacacional. El proyecto arquitectónico prioriza los espacios abiertos, las líneas limpias y la conexión constante con el exterior, creando una atmósfera sofisticada y atemporal.

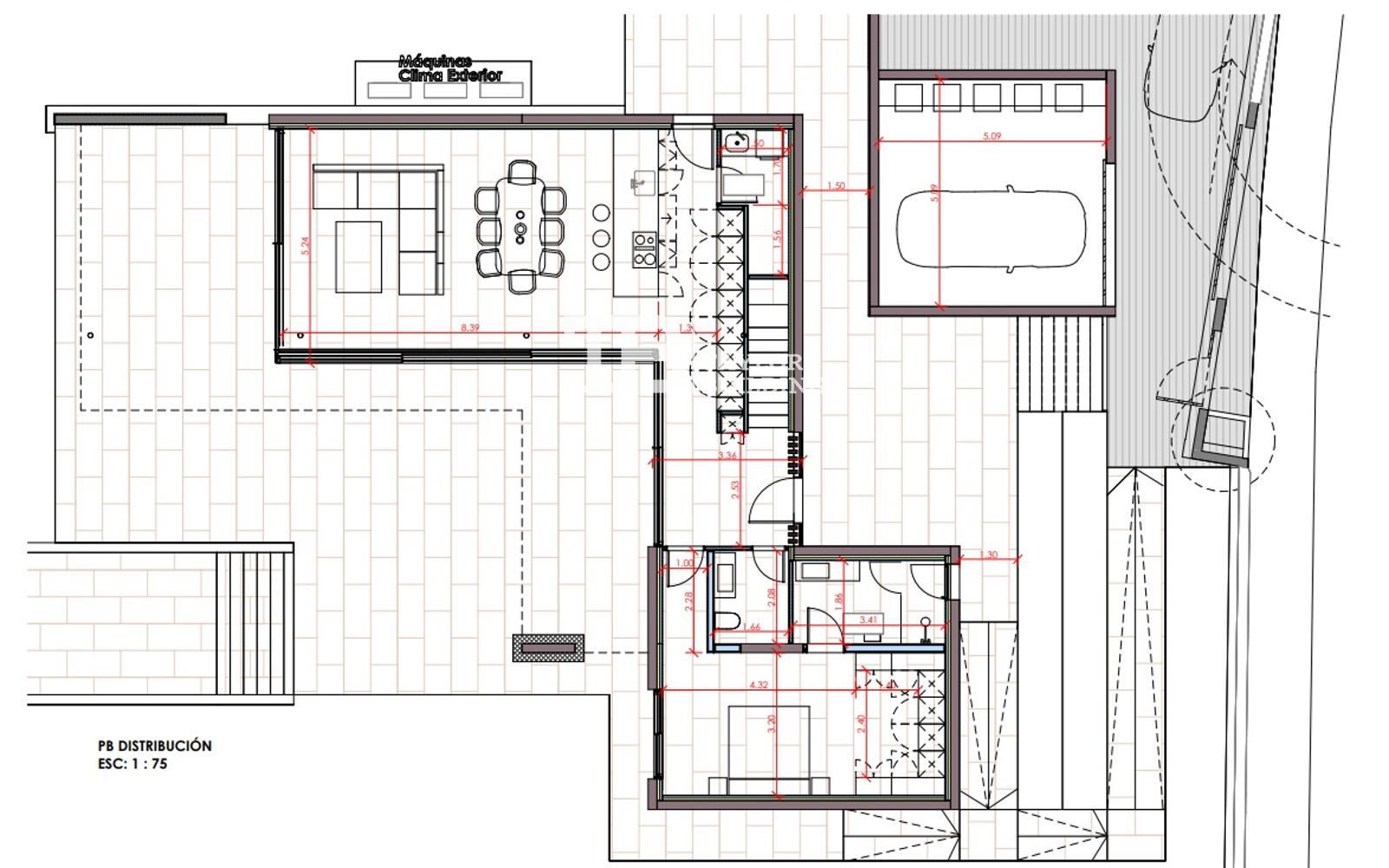
Desde el primer momento, el interior sorprende por su luminosidad y amplitud, gracias a grandes ventanales que permiten la entrada de luz natural durante todo el día y realzan cada estancia. La planta baja alberga una generosa zona de día que integra salón, comedor y una moderna cocina de concepto abierto, diseñada para combinar estética y practicidad. En este nivel se encuentran también una lavandería independiente y un aseo de cortesía, aportando comodidad al día a día.

La planta principal acoge además una distinguida suite principal, pensada como un auténtico refugio privado. Este espacio cuenta con un amplio vestidor y un elegante baño completo, ofreciendo un ambiente de serenidad y bienestar.

En la planta superior se sitúa un segundo dormitorio en suite, con baño privado y acceso directo a una terraza exclusiva, ideal para disfrutar de momentos de calma e intimidad. Completan esta planta dos dormitorios adicionales, luminosos y versátiles, que comparten un baño completo, perfectos para familiares, invitados o incluso como despacho o sala multifuncional.

Uno de los grandes valores añadidos de la propiedad es su azotea transitable con vistas al mar, un espacio privilegiado que invita a crear una zona chill-out, un solárium o un lugar de encuentro desde el que contemplar el paisaje y disfrutar del estilo de vida mediterráneo.

El exterior ha sido diseñado con el mismo nivel de detalle y elegancia. Desde la cocina se accede a un encantador porche cubierto que conecta directamente con la piscina privada y el jardín, creando un entorno ideal para el ocio, el descanso y las reuniones al aire libre. Todo el espacio exterior ha sido concebido para un mantenimiento cómodo y para disfrutar del clima durante todo el año.

La villa dispone de dos plazas de aparcamiento, una en garaje cerrado y otra en zona exterior, garantizando comodidad y seguridad.

La propiedad se entrega completamente amueblada, con una cuidada selección de materiales y acabados de alta gama. Además, está equipada con las últimas tecnologías en eficiencia energética, incluyendo aislamiento térmico avanzado, sistema de aerotermia, suelo radiante y climatización centralizada, asegurando un confort óptimo en cualquier estación y un consumo energético responsable.

La ubicación en Sa Torre es otro de los grandes atractivos de esta propiedad. Esta consolidada urbanización residencial destaca por su ambiente tranquilo, seguridad y alta calidad de vida, siendo una opción ideal tanto para residencia habitual como para segunda vivienda. Rodeada de naturaleza y amplias zonas verdes, ofrece un entorno relajado sin renunciar a la cercanía de todos los servicios.

A pocos minutos se encuentran comercios, restaurantes, colegios, centros deportivos y campos de golf, así como algunas de las mejores playas y calas del sur de Mallorca. Su excelente conexión con Palma y con el aeropuerto internacional, accesible en pocos minutos en coche, garantiza una comunicación cómoda y eficiente durante todo el año.

Vivir en Sa Torre significa disfrutar del auténtico estilo de vida mediterráneo, con paseos junto al mar, espectaculares atardeceres y un entorno cuidado y exclusivo, ideal para quienes buscan privacidad, bienestar y una ubicación estratégica en la isla.

Índice de alquiler

Año de construcción 2026
Construidos 280 m2
Útiles 252 m2
Parcela 1.080 m2
Precio/m² 8.214
Terraza 40 m2
Dormitorios 4
Baños 3
Amueblado
Cocina Amueblada
Calefacción Suelo Radiante
Garajes 2
Carp. Exterior Aluminio
Carp. Interior Madera maciza
Orientación SurOeste
Estado Excelente
Tipo de suelo Baldosa Porcelanico
Aire acondicionado
Piscina privada
Adaptado
Calificación Energética (A) VER
Luz
Agua
Alarma interior
Acceso discapacitados
La dirección del inmueble es aproximada.

Inmuebles similares:

 

Taylor Building presenta precioso chalet independiente en la zona de Son Gual,con  487 m² construido en parcela de 2.001 m², con terrazas panorámicas, piscina de 10 m y azotea con vistas a Palma y al mar. Planta baja con salón-comedor, cocina americana, dormitorio y baño; planta superior con 3 dormitorios y 2 baños; sótano con salas polivalentes y garaje. Equipamiento de lujo, ascensor, Miele, suelo radiante y aire acondicionado. Se entrega amueblado. 

2.640.000 €
 487 m2  4  3
 

Taylor Building ofrece un magnífico chalet unifamiliar en Costa de la Calma, Calvià, con 780 m² de parcela y 272 m² construidos. Cuenta con 4 dormitorios (2 suites), una cocina moderna, piscina y amplias terrazas para disfrutar al aire libre. Ubicado en una zona tranquila, ideal para vivir o vacacionar.

2.229.000 €
 272 m2  4  3
Solicita información

Si deseas más información sobre esta propiedad, por favor, rellena el formulario:

Taylor Building
Paseo de Illetas 2 Local 7, Centro Comercial \\\\"Ses Illetes\\\\"- Illetas, Calviá. 2
07181 – Illetes