Exclusive designer villa in Son Gual!

House for sale in Palma De Mallorca, Baleares (Son Gual)

Palma De Mallorca (Son Gual)

Ref. 1445 404 m2 4 2 4
sale: 2,690,000 

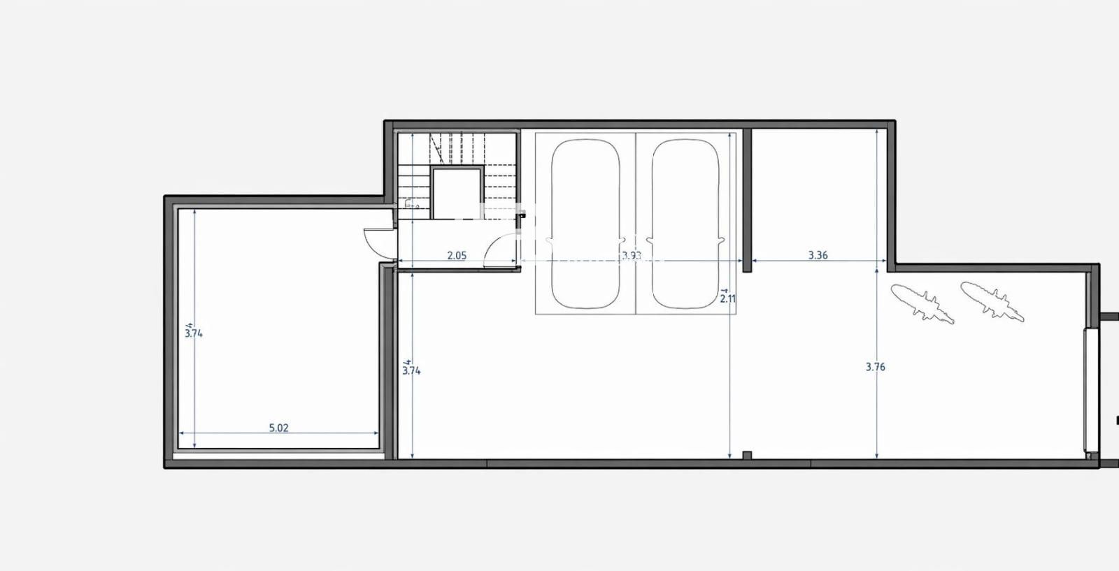
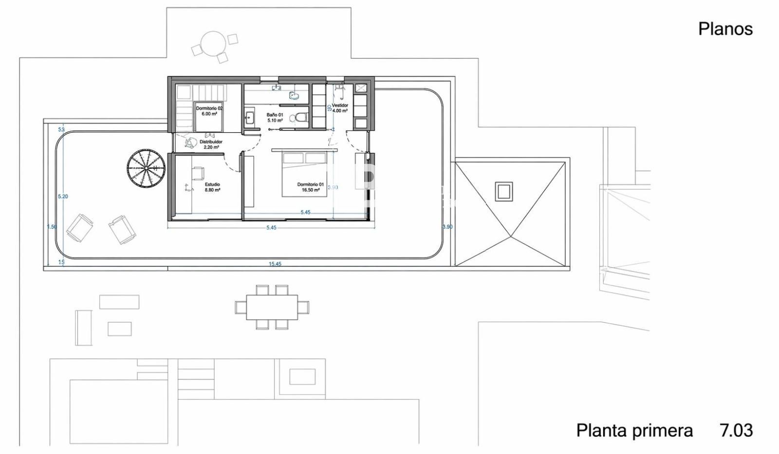
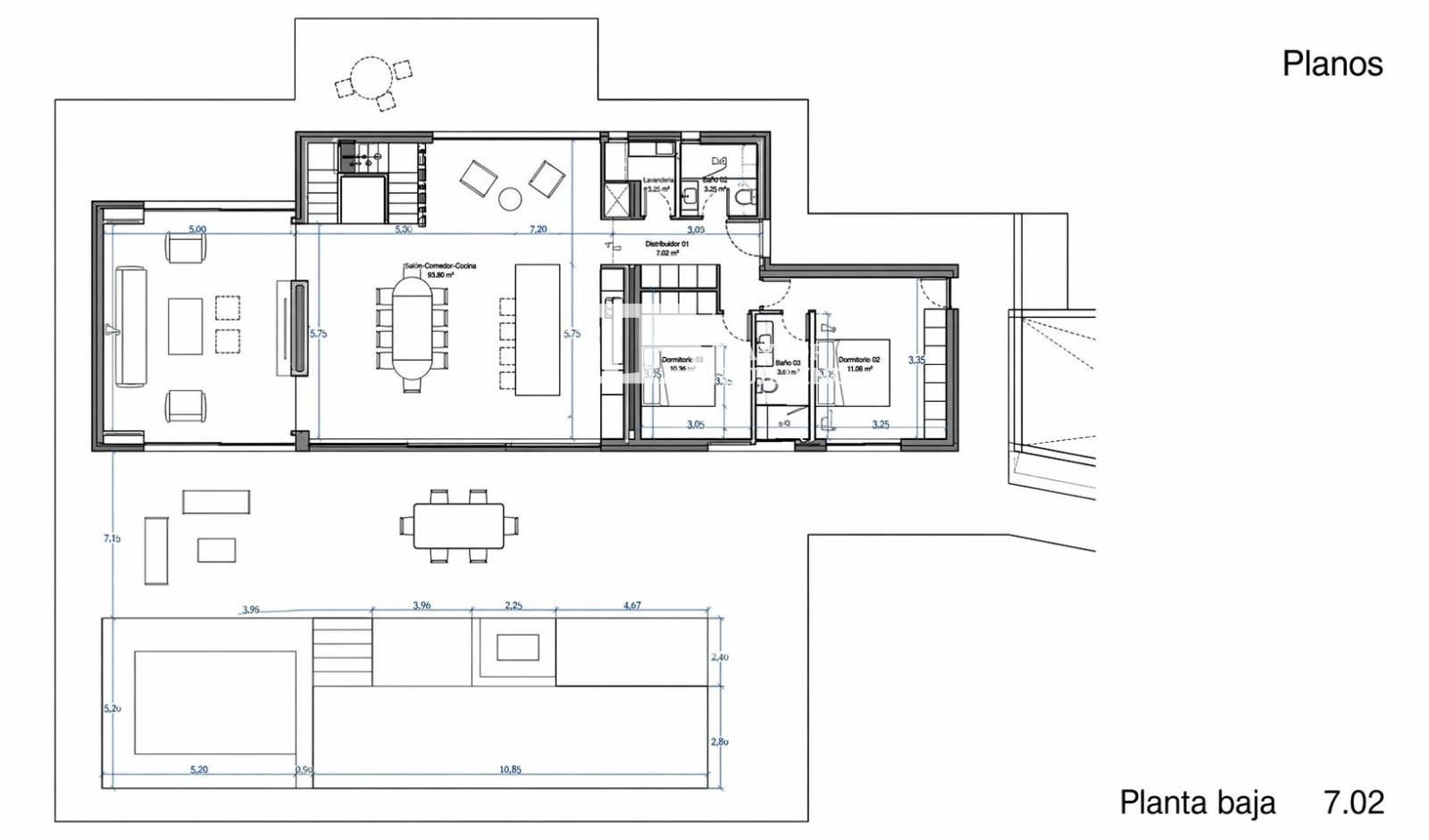
Taylor Building Real Estate presents this extraordinary new-build villa in Son Gual, one of Mallorca’s most exclusive and tranquil residential areas, located just 20 minutes east of Palma. A privileged enclave that combines privacy, nature, and proximity to the city, as well as being next to the prestigious Son Gual golf course, considered one of the best in Europe. The property sits on a large southwest-facing plot, ensuring excellent daylight throughout the day and spectacular sunsets. Its contemporary architecture with clean, elegant lines has been carefully designed to integrate with the surroundings, offering a sophisticated and relaxed lifestyle. One of the villa’s most notable aspects is its open living concept, where indoor and outdoor spaces blend naturally. Thanks to its floor-to-ceiling windows, especially in the living room and the master suite, the enclosures disappear completely within the walls, creating a total continuity between interior spaces and terraces. This design allows you to make the most of the Mediterranean climate and a unique sense of spaciousness and freedom. The dwelling will have approximately 403 m² of constructed area, including an elegant 36 m² glassed-in porch and a spacious 172 m² basement. Outdoors, different terrace areas unfold, totaling 184 m², designed for rest, leisure, and outdoor social life. In front of the house sits a magnificent private pool of 10 x 3 meters, perfectly oriented to enjoy sun for most of the day. The interior layout has been conceived to offer functionality, comfort, and versatility. On the ground floor there is a spacious living-dining room with a designer open-plan kitchen, creating a modern and welcoming atmosphere, with direct access to the porch and outdoor areas. This same floor houses a guest toilet, a practical laundry room, two double bedrooms, and a full bathroom, ideal for guests or family. On the upper floor is the exclusive master suite, a true private retreat that features a large bedroom, en-suite bathroom, dressing room, and an additional space that can be used as an office, reading area, or even an extra bedroom depending on the future owner’s needs. The basement houses the technical room and a large garage with space for three vehicles, also offering extra storage space. The villa has been designed under criteria of maximum energy efficiency and sustainability, incorporating high-quality systems and materials to ensure comfort year-round. Notable features include underfloor heating, cold/heat air conditioning, air-source heat pump, exterior carpentry with double glazing, fireplace, built-in wardrobes, and pre-installation for solar panels.

The property also includes the necessary preparation for the installation of an elevator, adding convenience and accessibility. The property has a building license and will be delivered fully finished in approximately 12 months. It also offers the possibility to customize finishes, materials, and equipment, allowing every detail to be tailored to the buyer’s taste and lifestyle.

This villa represents an exceptional opportunity to acquire a contemporary, efficient, and fully customized home in Mallorca’s exclusive surroundings, ideal as both a permanent residence and a second home.

Do not hesitate to contact Taylor Building Real Estate for more information or to arrange a viewing. We will be happy to accompany you in creating your new home.

Rental index

Sale Price 2,690,000 €
Price/m² 6,658
Construction year 2026
Constructed area 404 m2
Usable floor space 404 m2
Plot 2,006 m2
Bedrooms 4
Bathrooms 2
Furnished Kitchen
Heating radiating floor
Storage room
Garages 4
Exterior carpentry PVC
Interior carpentry Wood
Orientation sur
Condition Excellent
Floor type porcelain tile
Lift
Air conditioning
Private pool
Disabled facilities
Energy Rating (B) SHOW
Electricity
Water
Security service
Access surveillance
The address of the property is approximate.

Similar properties:

 

Exclusive villa in Ses Casas Novas, just 5 minutes from Palma de Mallorca. 550 m² of living space on an 896 m² plot, featuring spacious rooms, high ceilings, and abundant natural light. Includes an infinity pool, garden, barbecue area, and paddle tennis court. Premium finishes in a tranquil setting with views of the Serra de Tramuntana mountains.

2,300,000 €
 600 m2  4  4
 
House for sale in Calvià, with 430 m2, 5 rooms and 3 bathrooms, Swimming pool, 3 Garage space, Storage room, Air conditioning and Heating Central heating.
2,170,000 €
 430 m2  5  3
Ask for information

If you want more information about this property, please fill in the form:

Taylor Building
Paseo de Illetas 2 Local 7, Centro Comercial \\\\\\"Ses Illetes\\\\\\"- Illetas, Calviá. 2
07181 – Illetes